Description

Jolie Villa Neuve T3 à Torre-Pacheco ...
Livraison - en Novembre 2026
Neuf, garantie 10 ans

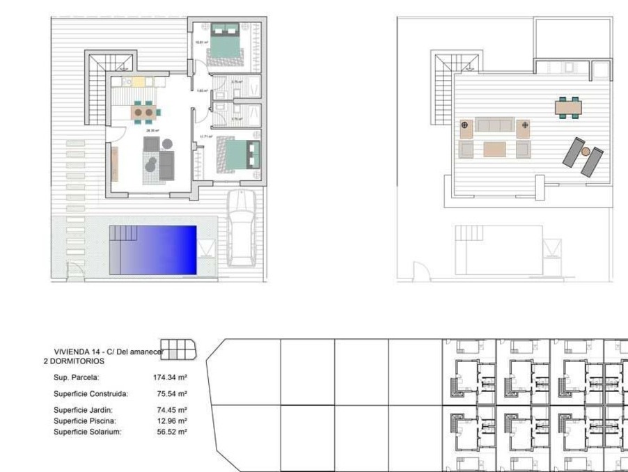
Caractéristiques: 2 chambres, 2 salles de bain, Cuisine ouverte, Salle à manger, Salon ouvert, Terrasses, Solarium de 56,52 m2 , Jardin avec piscine …..

Piscine Privée individuelle avec banc et escaliers d'accès. Douche piscine incluse.

Plage à 16 km

Villa avec piscine privée individuelle, plain-pied avec terrasse et grand solarium au premier étage, permettant de profiter du soleil toute l'année.

Cuisine: Électroménagers inclus en noir : Réfrigérateur intégré, Plaque de cuisson, Lave-vaisselle intégré, Micro-ondes, Four et Hotte aspirante

Points TV et téléphone dans le salon et toutes les chambres.

• Prises de courant et antenne dans le solarium et le jardin.
• Prises d'eau dans le solarium et jardin.
• Gazon artificiel sur la partie frontal du solarium.
• Cuisine d'été dans le solarium avec prise pour frigo et plan de travail en granit ou similaire.

58 minutes en voiture de l’aéroport d’Alicante (97 km)
11 minutes en voiture de Murcia (16 km)[IW]

Diagnostic énergétique

Consommation énergétique
en KWh/m2/an
Diagnostic énergétique
Émission de gaz à effet de serre
en Kg éq CO2/m2/an
Ges
Biens similaires