Description

Superbe Villa Neuve T4 à Desert Springs Golf Club
Livraison en 2025
Neuf direct promoteur, garantie 10 ans

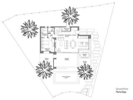
Caractéristiques : 3 chambres, 2 salles de bain, 1 WC indépendant Cuisine ouverte, Salle à manger, Salon ouvert, Terrasses et Solarium de 72,70 m2 .....

Piscine Privé de 18 m2 (6m x 3m)
Grande piscine Communautaire
Golf Desert Springs : sur place (à 100 m)
Distance à la plage: 9 Km.
Distance des supermarchés: 6 Km.
Distance des commerces et des loisirs: 6 Km.

Cette villa individuelle contemporaine de trois chambres allie harmonieusement luxe, confort et charme méditerranéen sur deux niveaux soigneusement conçus, alliant espace et fonctionnalité.
Le spacieux rez-de-chaussée, soigneusement conçu pour intégrer harmonieusement intérieur et extérieur, comprend une spacieuse chambre double avec salle de bain attenante et terrasse privée.
Le salon et la salle à manger ouverts s'ouvrent harmonieusement sur de vastes terrasses, dont une pergola, idéale pour les repas en plein air.

Le premier étage, empreint de luxe, dispose d'un espace privé où deux élégantes chambres ont un accès direct à leur terrasse privée, offrant un espace isolé avec une vue imprenable sur la nature.

Situé sur un terrain de 425 m² cette villa bénéficie d'une position privilégiée au sein de l'enclave de Desert Gold, offrant un cadre serein et privé encadré par les majestueuses chaînes de montagnes d'Almanzora, une toile de fond vraiment inspirante pour une vie de sophistication et de sérénité.

Desert Springs Resort est bien plus qu'une simple destination : c'est un véritable art de vivre.

Situé à quelques minutes en voiture de la côte méditerranéenne, le Desert Springs Resort offre le meilleur des deux mondes : la tranquillité et l'intimité d'un complexe exclusif, avec un accès facile à la culture dynamique et aux magnifiques plages de la Costa de Almería.

Nos villas offrent une vue imprenable sur le désert et les montagnes, s'intégrant parfaitement à la nature environnante tout en offrant tout le confort moderne.

Ce vaste complexe de 280 hectares a été soigneusement conçu pour s'intégrer harmonieusement à son environnement naturel.

Dès votre arrivée, vous serez accueilli par la beauté sereine du désert, la présence paisible de la flore indigène et la douce brise qui souffle dans les palmiers.[IW]

Diagnostic énergétique

Consommation énergétique
en KWh/m2/an
Diagnostic énergétique
Émission de gaz à effet de serre
en Kg éq CO2/m2/an
Ges