Description

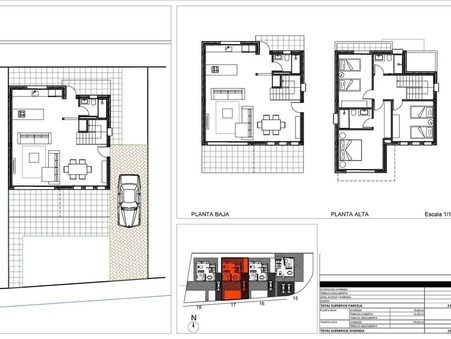
Superbe villa Neuve T4 à Dénia
Livraison en Novembre 2025
Neuf, garantie 10 ans

Caractéristiques : 3 chambres, 3 salles de bain, Cuisine ouverte, Salle à manger, Salon ouvert, Terrasse de 11 m², Jardin, Climatisation … etc …

Grande piscine communautaire

A seulement 2 km de la plage

A seulement 2,5 km du Port de Dénia

Tous Commerces, bars, supermarché et autres commerces à 2 km

Cuisine équipée avec: Four • Plaque vitrocéramique à induction. • Hotte aspirante. • Lave-vaisselle intégré à panneaux • Réfrigérateur encastré et à panneaux de 60 cm de large

Construction avec des matériaux de haute qualité, soigneusement sélectionnés pour garantir la durabilité, le style et la durabilité.

Chaque maison comprend son propre jardin privé et un parking séparé, assurant le confort et la sécurité.

Chaque maison aura accès à la grande piscine communautaire, idéale pour se détendre et profiter du climat méditerranéen, mais elle aura également son propre jardin privé orienté sud, assurant l'intimité et la lumière naturelle tout au long de la journée.[IW]

Diagnostic énergétique

Consommation énergétique
en KWh/m2/an
Diagnostic énergétique
Émission de gaz à effet de serre
en Kg éq CO2/m2/an
Ges