Description

Très Belle Villa Neuve T4 à Daya Nueva
Livraison en 2025.
Neuf, garantie 10 ans

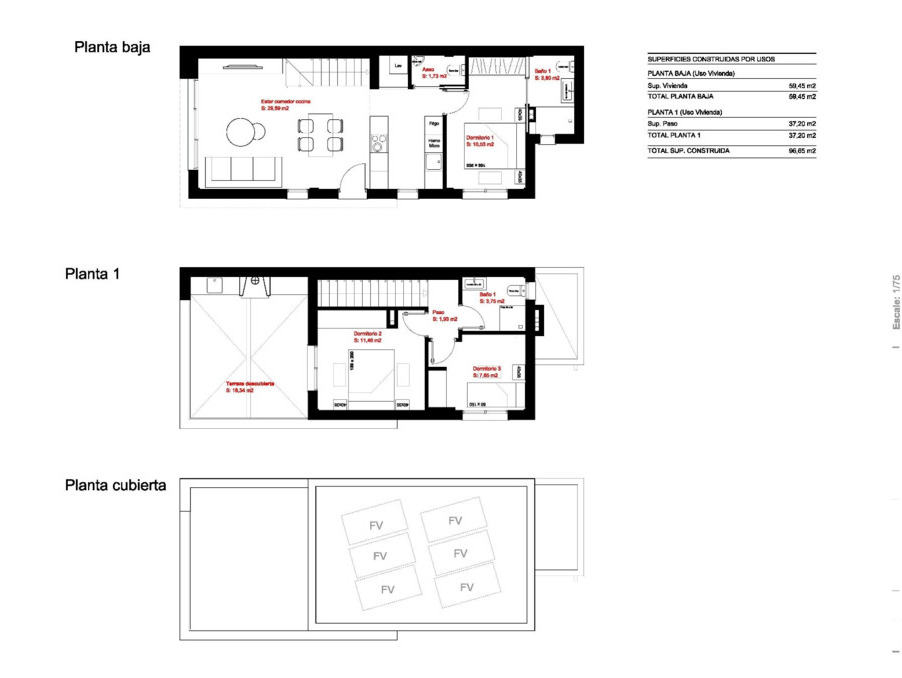
Caractéristiques : 3 chambres, 2 salles de bain, Cuisine ouverte, Salle à manger, Terrasses de 18,34 m², Jardin de 163 m² …..

Au calme dans un joli village, mais à 10 minutes des Plages et de la Fiesta.

Piscine privée incluse

Jardin fini

à 10 min des plages de La Marina

à 15 min des plages de Guardamar del Segura

Terrain de Golf à 8 km

5 Restaurants à moins de 3 km

Aéroport d’Alicante est à 30 minutes

Hôpital à 21 km

La chambre principale dispose d’une salle de et d’un dressing.

REVÊTEMENT DE SOL extérieur et intérieur en grès de première qualité aux couleurs neutres.

VITRAGE : Double vitrage, faible émission, classe CLIMALIT 3 + 3/12/3 + 3.

ÉCLAIRAGE ÉLECTRIQUE : Fabricant : marque Niessen Zenit en blanc ou similaire.

• Prise TV dans le séjour, les chambres et la terrasse

• ​​Prises téléphone dans le séjour et chambres.

• Le salon et les chambres ont accès au service de télécommunications[IW]

Diagnostic énergétique

Consommation énergétique
en KWh/m2/an
Diagnostic énergétique
Émission de gaz à effet de serre
en Kg éq CO2/m2/an
Ges